编辑:上海双高阀门集团有限公司
日期:2020-08-24 访问:4270
次高压减温减压装置用途及简述
一、用途:
本装置将新蒸汽的压力p1和温度t1(P1≤5.4MPa t1≤485℃)降低到用户需要的各种压力p2和温度t2要求。
二、系统简述:
本装置由减压系统,减温系统,安全保护装置和自动控制装置所组成。
减压系统—由减压阀和节流孔板通过执行机构来实现。
减温系统—采用通过带有执行机构的,可调喷咀喷水减温方式来实现蒸汽温度的调节。
安全保护装置—是直接采用冲量安全装置(由主安全阀和冲量安全阀组成)或弹簧安全阀来实现,当二次压超过规定值时,将压力超过
部分的蒸汽排向大气,从而使二次压力保持在允许值内。
自动控制装置—配用我厂生产的RKG—□□□□型蒸汽压力、温度控制装置,新蒸汽通过本装置能使二次蒸汽参数保持在所需的稳定值。
三、订货须知:
1. 产品名称:次高压减温减压装置
2. 签订合同必须写明下列参数:流量Q(即减温减压后流量);一次蒸汽压力p1,温度t1;二次蒸汽压力p2,温度t2;减温水压
力Pb(Pb≥P2+0.5MPa))减温水温度tb。
3. 控制方式:按需要选择自动控制装置的型号。
4. 对于二次蒸汽质量要求较高的使用场合,二次蒸汽温度应大于饱和温度5~10°。
5. 按用户需要可接受特殊订货。
6. 图中标志
为本厂供货范围。
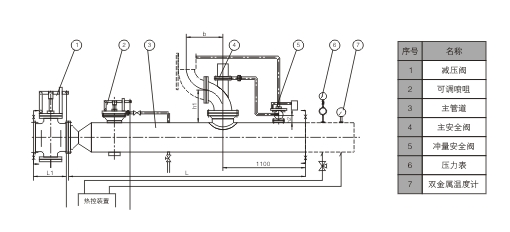
次高压减温减压装置系列总图(一套冲量安全阀)

注:本公司可提供角行程执行机构亦可提供直行程、气动或其它执行机构。
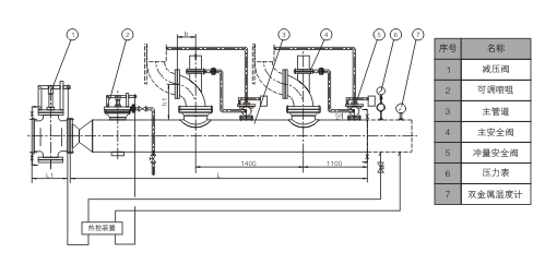
次高压减温减压装置系列总图(二套冲量安全阀)

注:本公司可提供角行程执行机构亦可提供直行程、气动或其它执行机构。
地 址:上海市松江叶榭工业区叶旺路双高工业区
电 话:021-57802222 67801100 67801122 67801266
传 真:021-67801267 67801268
http://www.shuanggao.com
E-mail:sales@shuanggao.com
上海双高阀门(集团)有限公司 |
|||||||||||||||||||||
|
|||||||||||||||||||||
|
||||||||||||||